Mon-Fri: 9:00 am to 5:00 pm

+1 587-329-2262

Need help? Make a Call

Grande Prairie

Serving Western Canada

The
PALMER

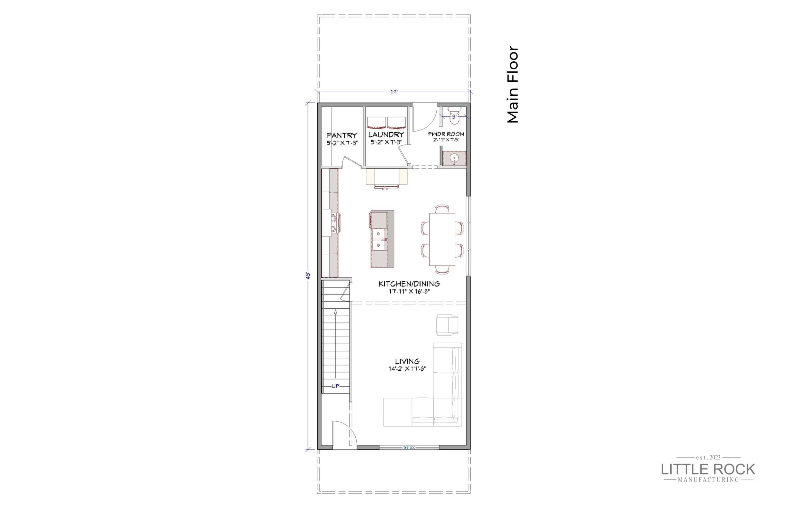
RTM Home

The PALMER

3 Bedrooms | 2 Bathrooms | 1,582 sq ft

3 Bedrooms, 2 Bathrooms,
1,582 sq ft

FLOOR PLAN INFO:

The Palmer is a spacious 1,582 sq ft, two-storey RTM home designed for contemporary family living.

It features 3 comfortable bedrooms and 2 bathrooms, all thoughtfully located on the upper floor for added privacy and convenience.

The open concept layout on the main level seamlessly connects the dining, kitchen, and living areas, creating an ideal space for gatherings and family activities.

With its modern design and functional layout, The Palmer is perfect for families looking for both style and comfort in their new home.

The Palmer comes with a variety of Standard Options that are included in the pricing, offering exceptional value without hidden costs:

  • Hardie Board Siding for durability and a sleek exterior
  • Upgraded Appliance Package with modern, energy-efficient appliances
  • Custom Cabinets to enhance functionality and design
  • Quartz Countertops Throughout for a luxurious finish in kitchens and bathrooms
  • Gas Fireplace with Design Feature, creating a warm and stylish focal point
  • Painted Walls with contemporary color palettes to suit any style.
  • Designer Plumbing and Lighting Fixtures that add elegance and sophistication
  • Each RTM is totally Self-Contained, ensuring a fully equipped and ready-to-move-in home.

SPECS:

  • Total Floor Area: 1,582 SQ. FT.

  • 3 Bedrooms

  • 2 Bathrooms

  • Starting Price: $400,000

+1 587-329-2262

Need help? Make a Call

Grande Prairie

Serving Western Canada

© 2026 Little Rock Manufacturing  |  All rights reserved.  |  Built by Jay's Digital Consulting