Mon-Fri: 9:00 am to 5:00 pm

+1 587-329-2262

Need help? Make a Call

Grande Prairie

Serving Western Canada

The
AUSTIN

Park Model

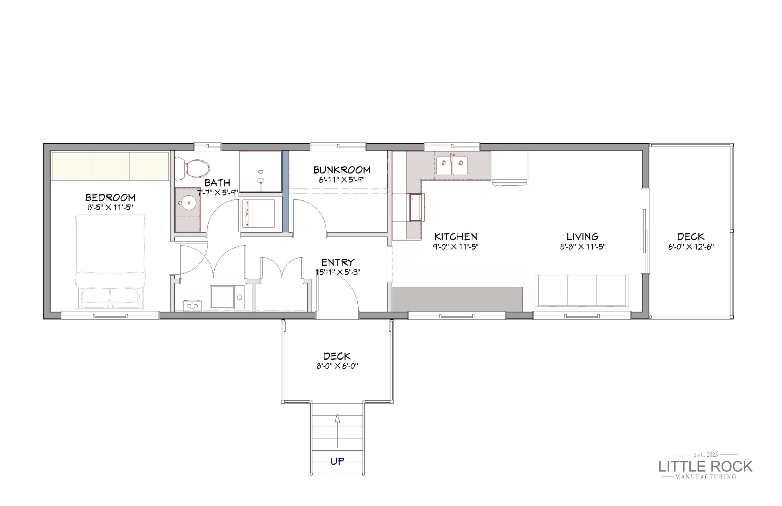
The AUSTIN

1 Bedroom, 1 bathroom, 538 sq ft

1 Bedrooms, 1 bathroom,
538 sq ft

FLOOR PLAN INFO:

The Austin Park Model is a modern yet rustic retreat, designed for those seeking a peaceful escape.

Its exterior and large windows blend seamlessly with nature. Inside, an open-concept living space with high ceilings and exposed beams offers comfort and style.

The kitchen is equipped for culinary adventures, while cozy sleeping quarters ensure a restful night's sleep.

The Austin boasts 538 sqft. Whether for a weekend getaway or a permanent home, the Austin Park Model promises tranquility and charm amidst natural beauty.

SPECS:

  • Total Floor Area: 538 SQ. FT.
  • 1 Bedroom
  • 1 Bathroom
+1 587-329-2262

Need help? Make a Call

Grande Prairie

Serving Western Canada

© 2026 Little Rock Manufacturing  |  All rights reserved.  |  Built by Jay's Digital Consulting